Ref # : GE2982
For Sale € 1,200,000.00
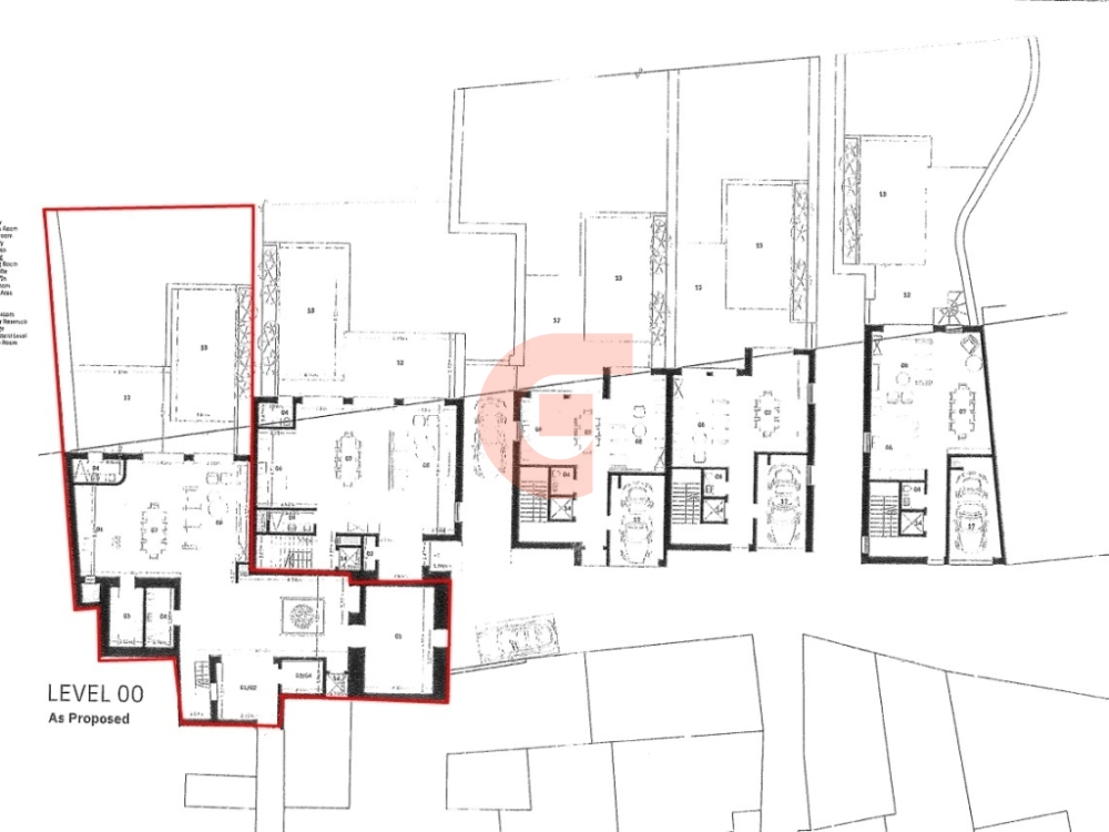
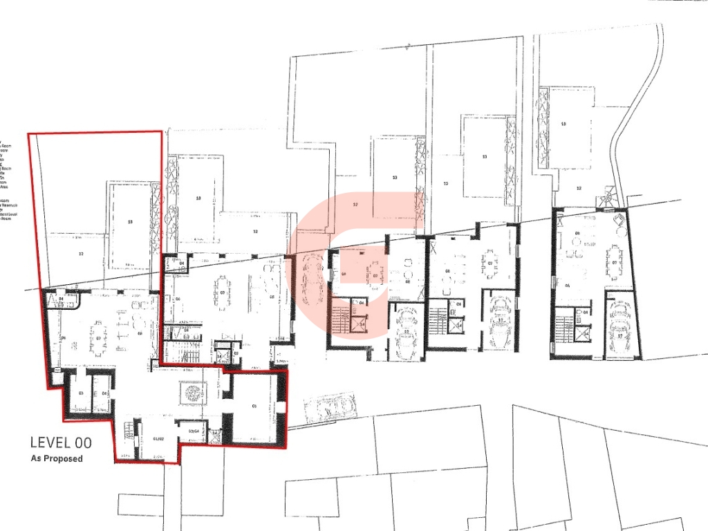
Villa
Qala, GOZOOverview
Located in this beautiful requested area in a very sought-after address a fantastic selection of Villas to be built in Shell Form including the pool. Each villa features a modern design, square layout floor plans, private sunny pools, and private gardens of different sizes. Properties Facing open country south-facing views, A one-time opportunity.
Features
Base Information
Parking Information
General Amenities
Exterior Amenities
Landscape Amenities
Giovanni Real Estate
One of the successful real estate agency in the Maltese Islands offering property for sale and turnkey solutions in Malta and Gozo. A vast range of,Apartments, Penthouses Maisonettes, Terraced Houses, Traditional Farmhouses, Houses of character ,Bungalows, Villas, Commercial outlets, property investments and properties for sale are available in Malta and Gozo.
Check out our website, the best place to start your real estate search. You can also contact our real estate agent for a customized selection of the property types you are interested in, including professional advice and opinion.



















