Ref # : GE3843
For Sale € 465,000.00
Terraced House with Pool & Deck Area
Qala, GOZOOverview
House 1 – Elegant 3-Bedroom Terraced Home with Private Pool Located in a UCA Area
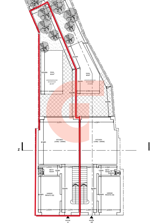
House 1 offers a beautifully designed layout ideal for those seeking comfort, space, and modern Gozitan living. The ground floor features a bright open-plan kitchen, living, and dining area, flowing directly onto a private 18.5m² swimming pool—perfect for outdoor living and entertainment. A bathroom, mud room, and private garage add practicality to the ground floor.
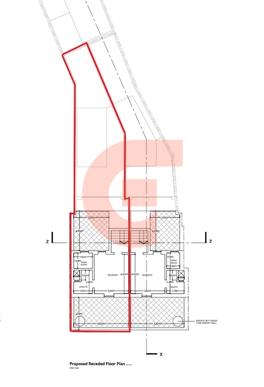
Upstairs, two generously sized bedrooms, each with its own en-suite, ensure total privacy and convenience for residents or guests. On the recessed floor, you’ll find an additional en-suite bedroom and a washroom, complemented by spacious terraces and service areas discreetly hidden below parapet height.
The façade showcases traditional franka stone, blue PVC apertures, and elegant white wrought-iron railings, blending modern living with timeless Gozo character. A sizeable 26.5m³ underground reservoir serves the property for added efficiency.
Internal area - 188sqm
External area - 109sqm
Features
Base Information
Parking Information
General Amenities
Exterior Amenities
Giovanni Real Estate
One of the successful real estate agency in the Maltese Islands offering property for sale and turnkey solutions in Malta and Gozo. A vast range of,Apartments, Penthouses Maisonettes, Terraced Houses, Traditional Farmhouses, Houses of character ,Bungalows, Villas, Commercial outlets, property investments and properties for sale are available in Malta and Gozo.
Check out our website, the best place to start your real estate search. You can also contact our real estate agent for a customized selection of the property types you are interested in, including professional advice and opinion.




