Ref # : GE3792
For Sale € 545,000.00
Terraced House
Santa Lucija (Gozo), GOZOOverview
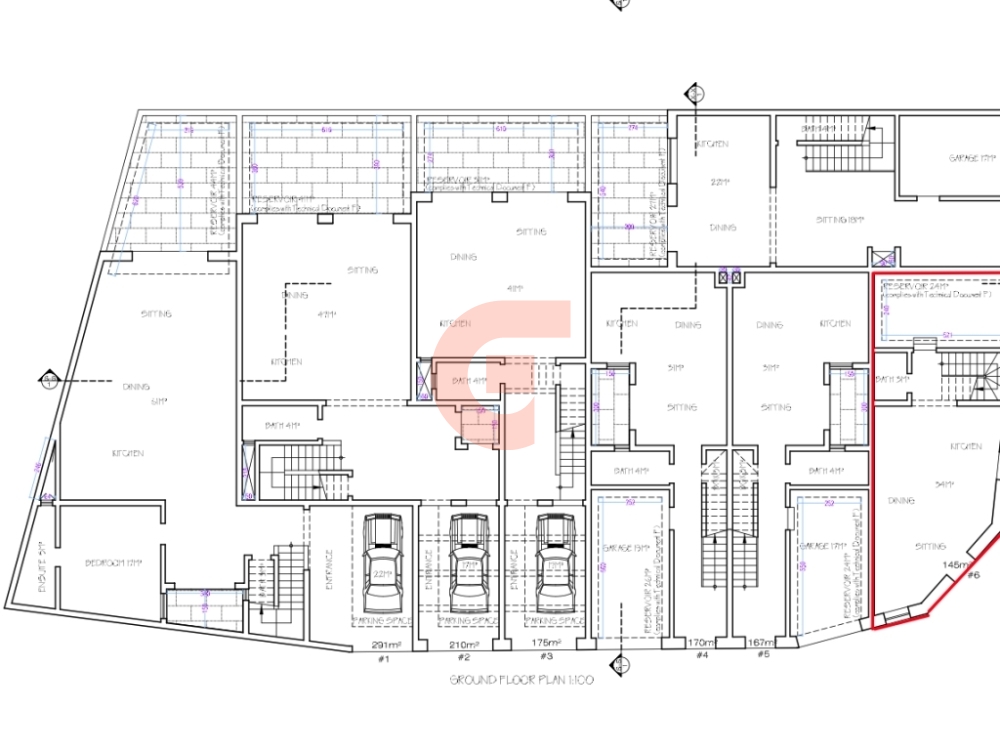
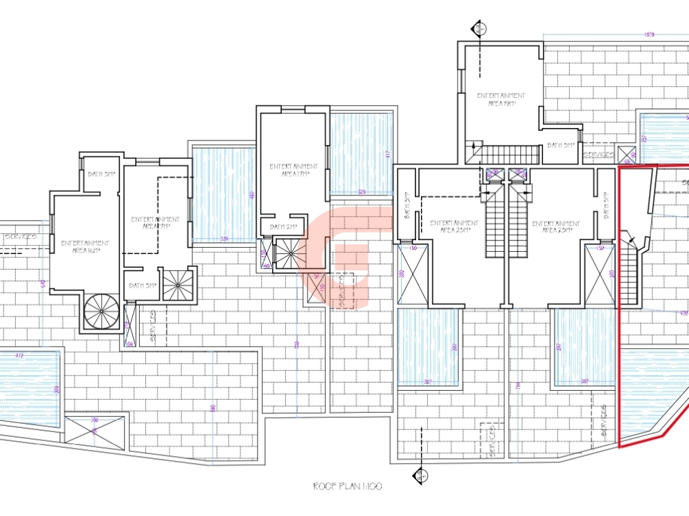
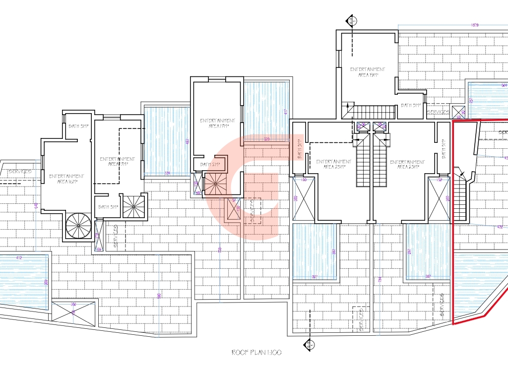
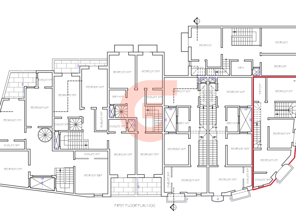
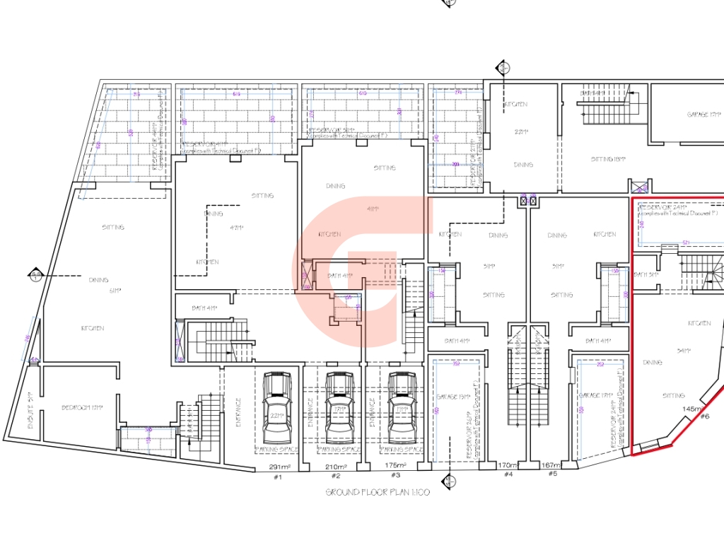
Excellently located in a quiet address of this traditional village Kercem/Santa Lucija, to be sold in a shell form state at pre-construction price, featuring a spacious, bright living/dining/kitchen area, a large bathroom, a street-level one-car garage, and split-level storage. The roof level includes a washroom, a large roof terrace, complemeted with a roof pool.
Features
Base Information
Parking Information
General Amenities
Exterior Amenities
Giovanni Real Estate
One of the successful real estate agency in the Maltese Islands offering property for sale and turnkey solutions in Malta and Gozo. A vast range of,Apartments, Penthouses Maisonettes, Terraced Houses, Traditional Farmhouses, Houses of character ,Bungalows, Villas, Commercial outlets, property investments and properties for sale are available in Malta and Gozo.
Check out our website, the best place to start your real estate search. You can also contact our real estate agent for a customized selection of the property types you are interested in, including professional advice and opinion.




