Ref # : GE3644
For Sale € 242,000.00
Penthouse
Victoria, GOZOOverview
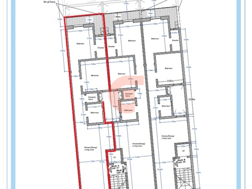
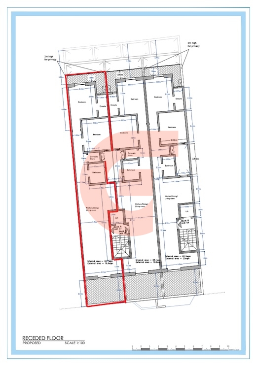
A 2-bedroom Penthouse, set in the outskirts of the capital city of Victoria, with a total area of 112.6 sqm, and sold in shell form with air space included.
Additional €5,000 for lift and common parts.
Features
Base Information
Parking Information
General Amenities
Exterior Amenities
Interior Amenities
Giovanni Real Estate
One of the successful real estate agency in the Maltese Islands offering property for sale and turnkey solutions in Malta and Gozo. A vast range of,Apartments, Penthouses Maisonettes, Terraced Houses, Traditional Farmhouses, Houses of character ,Bungalows, Villas, Commercial outlets, property investments and properties for sale are available in Malta and Gozo.
Check out our website, the best place to start your real estate search. You can also contact our real estate agent for a customized selection of the property types you are interested in, including professional advice and opinion.



